Unit F124 7250 Old Redmond Rd NE Redmond WA 98052
Listed By:
HomeSmart Real Estate Assoc
Listing ID
#2496372
Property Type
Condominium
County
King
Neighborhood
Redmond
Year Built
1989
Days on website
5
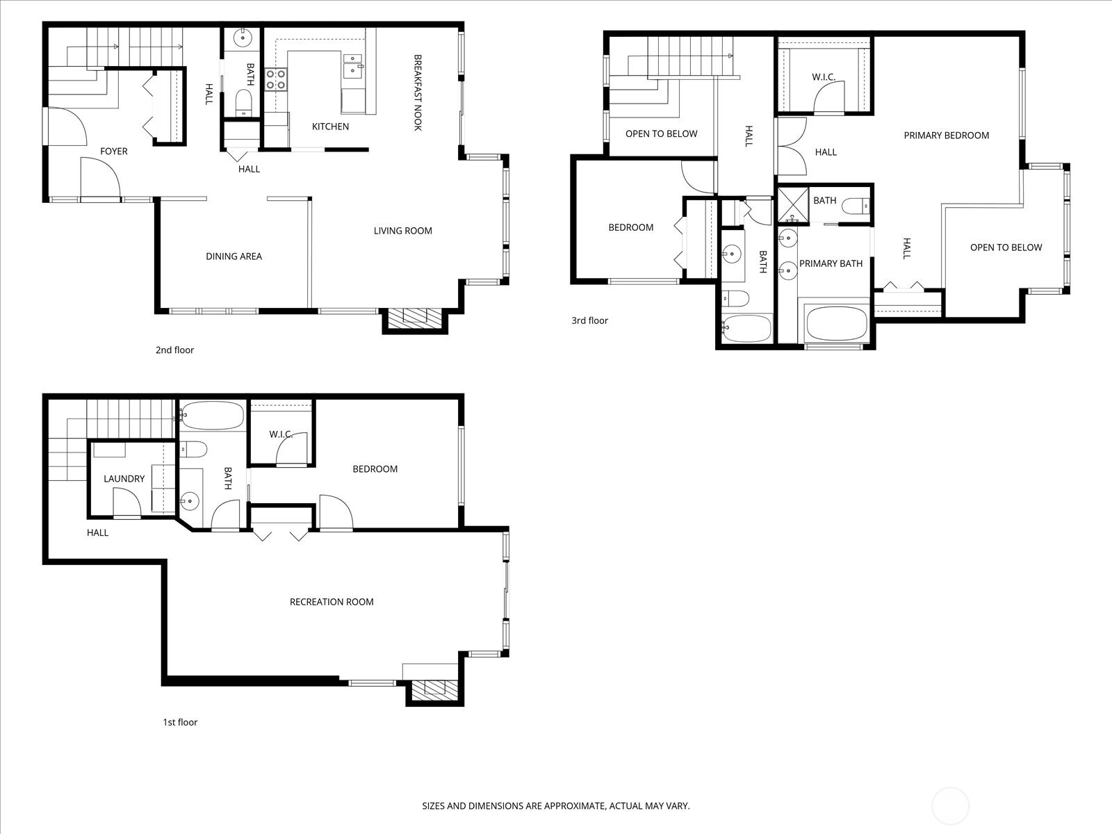
Welcome to the Sought After Marymoor Trails in Redmond—an inviting 3-bedroom, 3.5-bath end-unit large condo offering a spacious layout, abundant natural light, and an ideal location.The open-concept main level provides a comfortable flow for everyday living and entertaining. The kitchen features ample cabinetry and workspace, seamlessly connecting to the dining and living areas. Large windows fill the home with natural light, while NEWLY installed LUXURY VINYL plank flooring and paint THROUGHOUT adds a fresh, modern touch. Upstairs, the primary suite offers a private retreat with an en-suite bath and a walk-in closet. An additional generously sized bedroom and bathroom provide flexibility for guests, home office needs, or shared living. The lower level includes a bedroom with its own walk-in closet and a full bath & a nearby laundry room, creating a versatile space that works well as a guest suite, office, or workout room. Enjoy outdoor living on the refreshed Trex deck, perfect for relaxing or entertaining. As an end unit, the home benefits from added privacy and adjacent green space, enhancing the peaceful setting. Located near trails, parks, and restaurants, this home presents a great opportunity to personalize and make it your own in a highly desirable Redmond community. Excellent Lake Washington School District! Welcome Home!
List Price:
$ 920000
Taxes:
$ 7444
Appliances:
Disposal, Stove(s)/Range(s)
Association Fee Includes:
Common Area Maintenance, Earthquake Insurance, Lawn Service, Road Maintenance
Community Features:
High Speed Int Avail
Exterior Features:
Wood
Fee Frequency:
Monthly
Fireplace Features:
Wood Burning
Flooring:
Vinyl Plank
Green Energy Efficient:
Insulated Windows
Interior Or Room Features:
End Unit, Fireplace, Ground Floor, Insulated Windows, Primary Bathroom, Vaulted Ceiling(s), Walk-In Closet(s), Water Heater
Levels:
Three Or More
Lot Features:
Corner Lot, Dead End Street, Paved
Parking Features:
Individual Garage
Pets Allowed:
Subject to Restrictions
Roof:
Composition
School:
Lake Wash High, Rose Hill Middle, Rush Elem
Structure Type:
Multi Family
View:
Territorial
School:
Rush Elem
School:
Lake Wash High
School:
Rose Hill Middle
MLSAreaMajor:
550 - Redmond/Carnation
City:
Redmond
Subdivision Name:
Redmond
Association Fee:
1280
|
Scan this QR code to see this listing online.
Direct link:
https://www.searchproperties.eastsiderealestate.org/listings/direct/eb6871455512e3e7fc4945a3708ac82d
|
Listed By:
HomeSmart Real Estate Assoc
206-523-7653
Listings courtesy of Northwest Multiple Listing Service (NWMLS) as distributed by MLS GRID.
IDX information is provided exclusively for consumers' personal non-commercial use, and it may not be used for any purpose other than to identify prospective properties consumers may be interested in purchasing. The data is deemed reliable but is not guaranteed by MLS GRID.
Based on information submitted to the MLS GRID as of Monday, April 6, 2026 4:04 PM.
All data is obtained from various sources and may not have been verified by broker or MLS GRID. Supplied Open House Information is subject to change without notice. All information should be independently reviewed and verified for accuracy. Properties may or may not be listed by the office/agent presenting the information.
Properties displayed may be listed or sold by various participants in the MLS.
DMCA Notice