1111 Pearl Street S Seattle WA 98108
Listed By:
Kelly Right RE of Seattle LLC
Listing ID
#2504159
Property Type
Single Family Residence
County
King
Neighborhood
Beacon Hill
Year Built
2026
Days on website
22
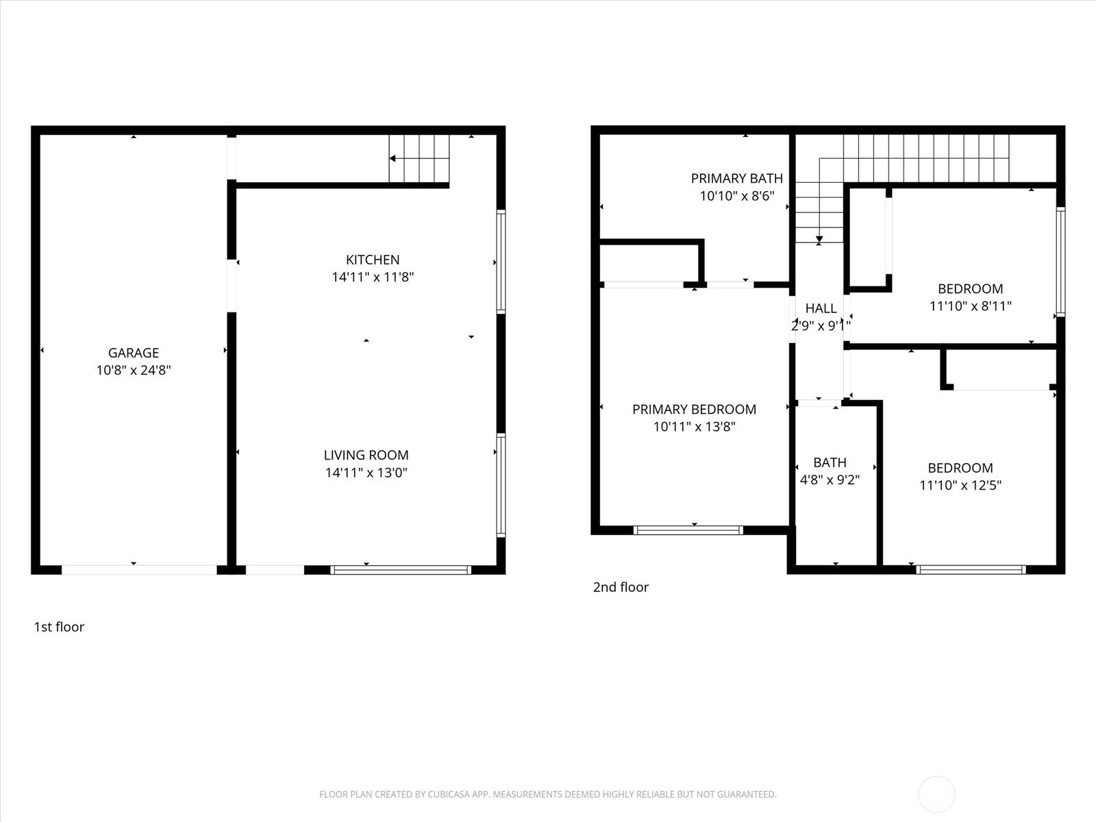
Experience elevated living in this new construction DADU in the highly sought-after Beacon Hill neighborhood, located within the acclaimed Seattle School District. Enjoy walkable convenience to neighborhood cafés, local dining, and grocery stores. Thoughtfully designed with an efficient floor plan, this home features 9-ft ceilings and a light-filled, open living space. The designer chef’s kitchen is the heart of the home, showcasing an expansive 8-ft quartz island, stainless steel appliances, and modern finishes. Upstairs, you’ll find three bedrooms and two baths, including a stunning primary suite with a custom accent wall. Unwind in the spa-inspired ensuite, complete with a skylight that fills the space with natural light, double vanity, bidet toilet, freestanding soaking tub, and rainhead shower. All bedrooms boast vaulted ceilings up to 10 ft, enhancing the sense of space and comfort. Equipped with mini-split systems for energy-efficient heating and A/C on the main level and in the primary suite. The thoughtfully designed front yard showcases beautiful landscaping and low-maintenance artificial turf, enhancing curb appeal year-round. An oversized one-car garage offers EV charging and additional storage, completing this exceptional home. NO HOA!
Appliances:
Disposal, Stove(s)/Range(s)
Direction Faces:
West
Exterior Features:
Cement Planked, Wood
Flooring:
Ceramic Tile, Vinyl Plank
Foundation Details:
Poured Concrete
Interior Or Room Features:
Water Heater
Levels:
Two
Lot Features:
Alley, Corner Lot
Parking Features:
Attached Garage, Driveway, Off Street
Property Condition:
Very Good
Roof:
Torch Down
School:
Cleveland High, Maple, Mercer Mid
Security Features:
Partially Fenced
Sewer:
Sewer Connected
Structure Type:
House
View:
Territorial
Water Source:
Public
School:
Maple
School:
Cleveland High
School:
Mercer Mid
MLSAreaMajor:
385 - SODO/Beacon Hill
City:
Seattle
Subdivision Name:
Beacon Hill
|
Scan this QR code to see this listing online.
Direct link:
https://www.searchproperties.eastsiderealestate.org/listings/direct/d1ff0f653daab3822cdc479bf9214340
|
Listed By:
Kelly Right RE of Seattle LLC
206-525-5235
Listings courtesy of Northwest Multiple Listing Service (NWMLS) as distributed by MLS GRID.
IDX information is provided exclusively for consumers' personal non-commercial use, and it may not be used for any purpose other than to identify prospective properties consumers may be interested in purchasing. The data is deemed reliable but is not guaranteed by MLS GRID.
Based on information submitted to the MLS GRID as of Thursday, April 30, 2026 10:04 AM.
All data is obtained from various sources and may not have been verified by broker or MLS GRID. Supplied Open House Information is subject to change without notice. All information should be independently reviewed and verified for accuracy. Properties may or may not be listed by the office/agent presenting the information.
Properties displayed may be listed or sold by various participants in the MLS.
DMCA Notice