Unit B 1341 14th Avenue S Seattle WA 98144
Listed By:
Real Broker LLC
Listing ID
#2504844
Property Type
Single Family Residence
County
King
Neighborhood
Beacon Hill
Year Built
2007
Days on website
21
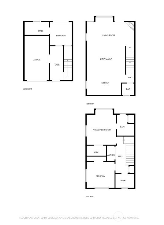
This 3-bedroom, 3.5-bath townhouse offers comfort, flexibility, and convenience in the vibrant North Beacon Hill neighborhood – just blocks from the new light rail and no HOA! With high ceilings, a cozy gas fireplace, and a powder room for guests, the main level is designed for easy living and entertaining. The open concept space features refinished hardwood floors, a bright living room and generous dining space. A breakfast bar looks into the well-appointed kitchen with abundant cabinetry, stainless steel appliances, and expansive quartz counter space. Upstairs you'll find the spacious primary suite with full bathroom and a walk-in closet with custom storage system. The second bedroom, additional full bath and convenient laundry closet complete the upper level. The lower-level offers flexibility with a bedroom, full bathroom and slider to the fully fenced yard—perfect for a guest suite, work from home office, or hobby space. Private patio becomes your spring time oasis with mature Katsura and Spanish Maple trees. Private, attached garage offers additional storage. Additional features include new carpet, beautiful millwork, two new windows, tankless hot water heater and a hydronic heating system. Located near Jefferson Park, golf, dining, and recreation. Less than half a mile to the Judkins Park Light Rail Station with direct service to downtown, Mercer Island, Bellevue, and Redmond. Easy access to I-5, I-90, transit, Harborview, stadiums, and more.
List Price:
$ 698500
Taxes:
$ 6332
Appliances:
Disposal, Stove(s)/Range(s), Tankless Water Heater
Direction Faces:
East
Exterior Features:
Cement Planked, Wood Products
Fireplace Features:
Gas
Flooring:
Bamboo/Cork, Carpet, Ceramic Tile, Hardwood
Foundation Details:
Slab
Interior Or Room Features:
Bath Off Primary, Fireplace, Vaulted Ceiling(s), Walk-In Closet(s), Water Heater
Levels:
Multi/Split
Lot Features:
Curbs, Paved, Sidewalk
Parking Features:
Attached Garage, Driveway
Roof:
Composition
School:
Buyer To Verify, Buyer To Verify, Buyer To Verify
Security Features:
Fully Fenced
Sewer:
Sewer Connected
Structure Type:
Townhouse
Vegetation:
Garden Space
View:
Territorial
Water Source:
Public
School:
Buyer To Verify
School:
Buyer To Verify
School:
Buyer To Verify
MLSAreaMajor:
385 - SODO/Beacon Hill
City:
Seattle
Subdivision Name:
Beacon Hill
|
Scan this QR code to see this listing online.
Direct link:
https://www.searchproperties.eastsiderealestate.org/listings/direct/03fb8582184f15daebca229fcc1cd915
|
Listed By:
Real Broker LLC
855-450-0442
Listings courtesy of Northwest Multiple Listing Service (NWMLS) as distributed by MLS GRID.
IDX information is provided exclusively for consumers' personal non-commercial use, and it may not be used for any purpose other than to identify prospective properties consumers may be interested in purchasing. The data is deemed reliable but is not guaranteed by MLS GRID.
Based on information submitted to the MLS GRID as of Tuesday, April 28, 2026 4:03 PM.
All data is obtained from various sources and may not have been verified by broker or MLS GRID. Supplied Open House Information is subject to change without notice. All information should be independently reviewed and verified for accuracy. Properties may or may not be listed by the office/agent presenting the information.
Properties displayed may be listed or sold by various participants in the MLS.
DMCA Notice