10303 210th Place SE Kent WA 98031
Listed By:
KW Lake Washington So
Listing ID
#2497436
Property Type
Single Family Residence
County
King
Neighborhood
Kent
Year Built
1989
Days on website
2
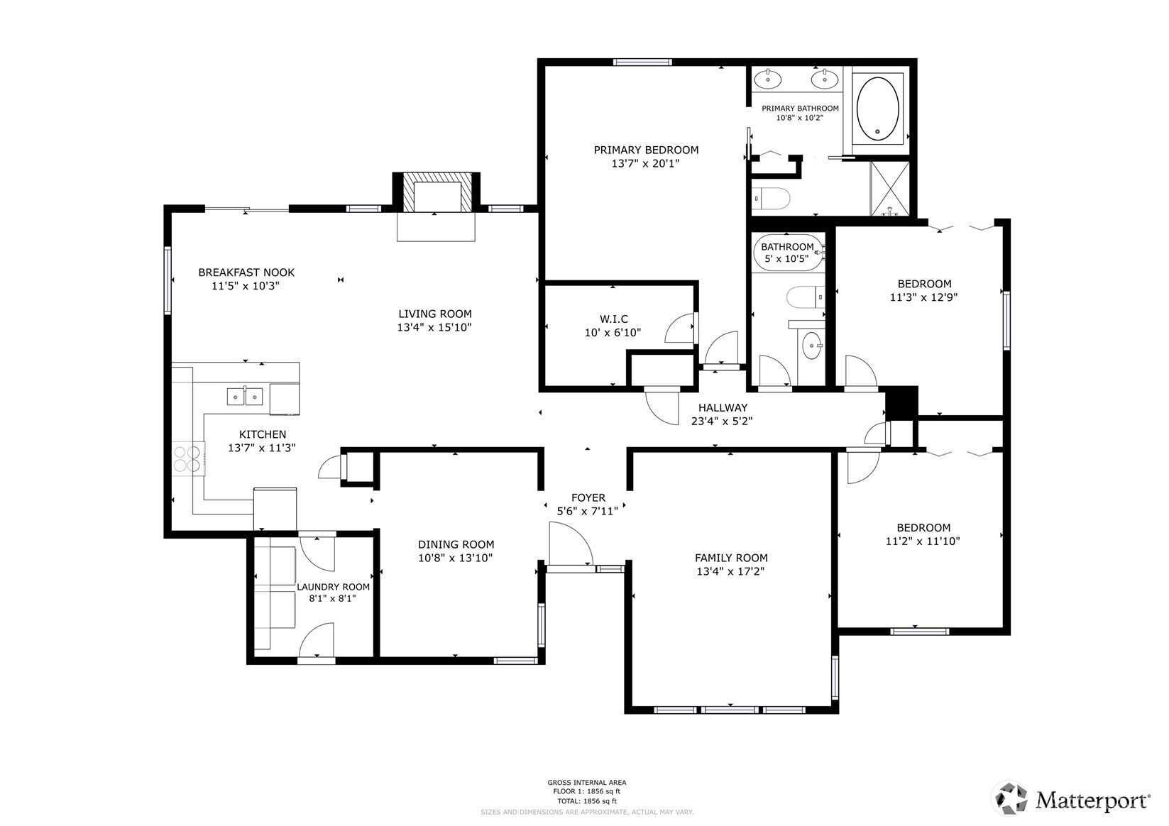
Tucked into a quiet cul-de-sac on a corner lot in the highly sought-after Stonepine neighborhood, this beautifully maintained rambler offers the ease of single-level living that today’s buyers are searching for. Surrounded by mature trees, this East Hill/Panther Lake gem blends privacy, comfort, and convenience. Step inside to a light-filled layout with thoughtful design throughout, offering approximately 2,000 square feet, including 3 bedrooms and 2 bathrooms. The primary suite features vaulted ceilings and a large walk-in closet, creating a spacious and relaxing retreat. Recent updates include new carpet, fresh paint in two of the guest bedrooms, and a new sump pump in the crawlspace for added peace of mind. The kitchen is both stylish and functional with quartz countertops, hardwood flooring, and all essential appliances included, making it ready for everyday living or entertaining. Stay comfortable year-round with a gas furnace and air conditioning. Out back, enjoy a fully fenced yard and patio—perfect for relaxing, gardening, or hosting gatherings. Ideally located just minutes from the light rail station with easy access to major freeways, commuting to Seattle, Bellevue, and the greater Eastside is simple and efficient. With its desirable layout, peaceful setting, and prime location, this home is a rare opportunity to own a rambler in one of Kent’s most loved neighborhoods.
List Price:
$ 700000
Taxes:
$ 6520
Appliances:
Disposal, Stove(s)/Range(s)
Association Fee Includes:
Common Area Maintenance
Community Features:
CCRs
Exterior Features:
Brick, Wood
Fee Frequency:
Annually
Fireplace Features:
Gas
Flooring:
Carpet, Hardwood, Vinyl
Foundation Details:
Poured Concrete
Interior Or Room Features:
Bath Off Primary, Dining Room, Fireplace, Skylight(s), Vaulted Ceiling(s), Walk-In Closet(s), Water Heater
Levels:
One
Lot Features:
Corner Lot, Cul-De-Sac, Curbs, Paved, Sidewalk
Parking Features:
Attached Garage, Driveway
Roof:
Composition
School:
Kentridge High, Meeker Jnr High, Panther Lake Elem
Security Features:
Fully Fenced
Sewer:
Sewer Connected
Structure Type:
House
Vegetation:
Garden Space
View:
Territorial
Water Source:
Public
School:
Panther Lake Elem
School:
Kentridge High
School:
Meeker Jnr High
MLSAreaMajor:
330 - Kent
City:
Kent
Subdivision Name:
Kent
Association Fee:
175
|
Scan this QR code to see this listing online.
Direct link:
https://www.searchproperties.eastsiderealestate.org/listings/direct/d78d397e88b21f915d10431e0dc135ce
|
Listed By:
KW Lake Washington So
425-757-3465
Listings courtesy of Northwest Multiple Listing Service (NWMLS) as distributed by MLS GRID.
IDX information is provided exclusively for consumers' personal non-commercial use, and it may not be used for any purpose other than to identify prospective properties consumers may be interested in purchasing. The data is deemed reliable but is not guaranteed by MLS GRID.
Based on information submitted to the MLS GRID as of Thursday, April 2, 2026 10:11 PM.
All data is obtained from various sources and may not have been verified by broker or MLS GRID. Supplied Open House Information is subject to change without notice. All information should be independently reviewed and verified for accuracy. Properties may or may not be listed by the office/agent presenting the information.
Properties displayed may be listed or sold by various participants in the MLS.
DMCA Notice