10610 28th Street NE Bellevue WA 98004
Listing ID
#2481463
Property Type
Single Family Residence
County
King
Neighborhood
West Bellevue
Year Built
2017
Days on website
11
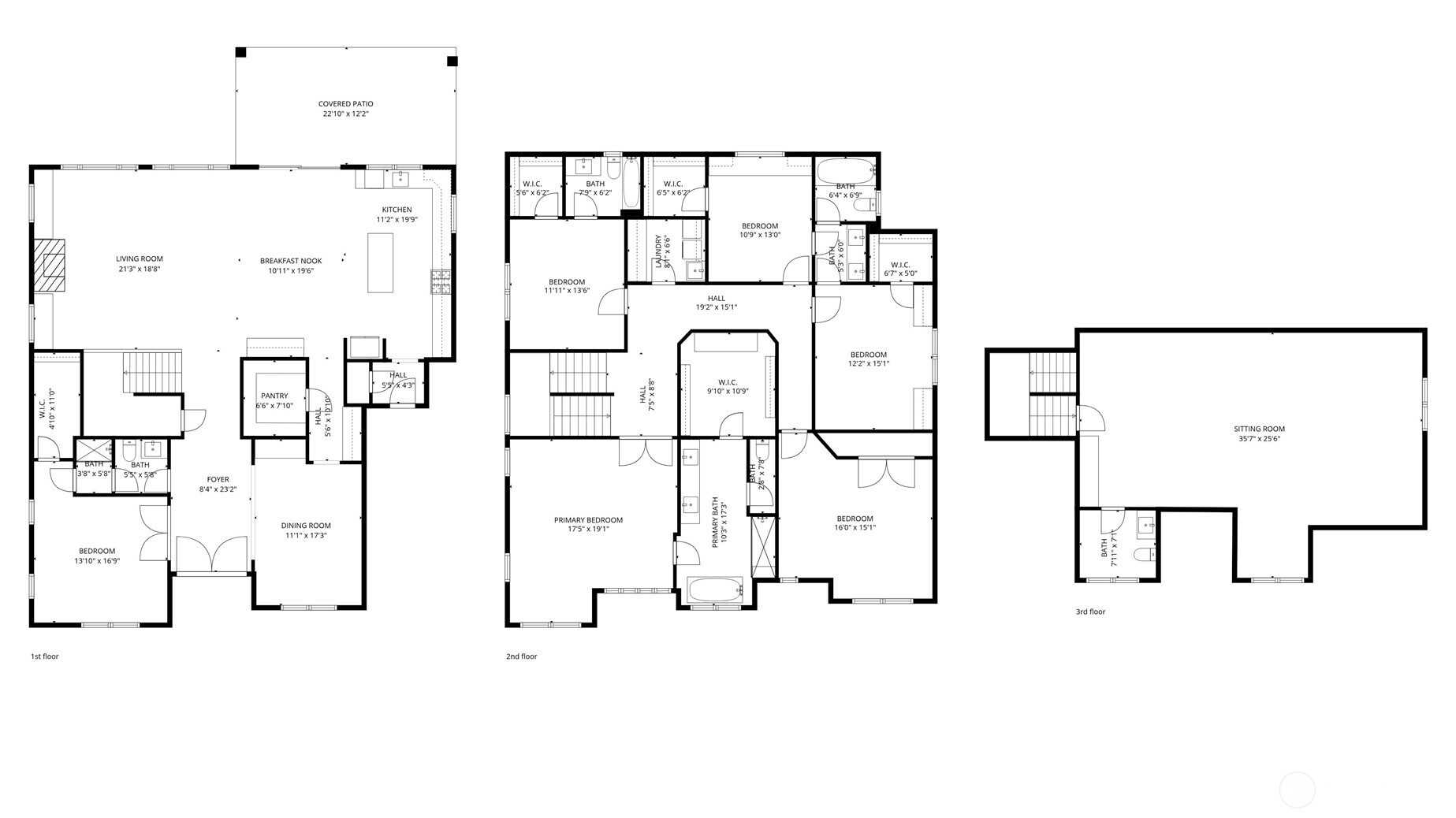
Tucked among multi-million-dollar homes, this timeless resale by award-winning builder American Classic Homes presents nearly 5,000 sq. ft. of thoughtfully curated living space. Exquisite craftsmanship is evident throughout, with tall doors, substantial custom millwork, and grand-scale baseboards that create a polished transition from rich hardwood floors to crisp white walls. Embodying quiet luxury, this kitchen showcases a full-wall marble backsplash with an artisan-inlaid focal point and elegant floor-to-ceiling cabinetry. The professional-grade Thermador appliance package anchors the room, complemented by a walk-in pantry offering outstanding storage and organization. The home features a desirable main-level suite—ideal for multi-generational living. With several bedrooms and versatile spaces, the floor plan easily supports a large household, dual home offices, or evolving living needs, enhanced by countless custom built-ins that add both charm and functionality. A true lifestyle chameleon, the oversized bonus room perfectly adapts to your needs—be it a cozy media den, playroom, yoga studio, or a welcoming spot for overnight guests. A tranquil sanctuary, the backyard features a manicured lawn framed by lush privacy hedging. The covered paver patio serves as a fluid extension of the home, perfect for year-round entertaiment. Whole-house Hunter Douglas blinds and a 3-car garage. Enjoy Eastside lifestyle with top Bellevue schools, just steps from QFC and mins from 520.
List Price:
$ 4280000
Taxes:
$ 29794
Appliances:
Disposal, Double Oven, Stove(s)/Range(s), Tankless Water Heater
Community Features:
Park
Direction Faces:
South
Exterior Features:
Cement Planked, Stone
Fireplace Features:
Gas
Flooring:
Carpet, Ceramic Tile, Hardwood
Foundation Details:
Poured Concrete
Interior Or Room Features:
Bath Off Primary, Dining Room, Fireplace, French Doors, High Tech Cabling, Pantry, Sprinkler System, Vaulted Ceiling(s), Walk-In Closet(s), Water Heater, Wet Bar
Lot Features:
Paved, Sidewalk
Parking Features:
Attached Garage
Property Condition:
Very Good
Roof:
Composition
School:
Bellevue High, Chinook Mid, Clyde Hill Elem
Security Features:
Fully Fenced
Sewer:
Sewer Connected
Vegetation:
Garden Space
View:
Territorial
Water Source:
Public
School:
Clyde Hill Elem
School:
Bellevue High
School:
Chinook Mid
MLSAreaMajor:
520 - Bellevue/West of 405
City:
Bellevue
Subdivision Name:
West Bellevue
|
Scan this QR code to see this listing online.
Direct link:
https://www.searchproperties.eastsiderealestate.org/listings/direct/6f03f637a44c720a3f63e880ec2a0f68
|
Listed By:
WeLakeside
425-246-1453
Listings courtesy of Northwest Multiple Listing Service (NWMLS) as distributed by MLS GRID.
IDX information is provided exclusively for consumers' personal non-commercial use, and it may not be used for any purpose other than to identify prospective properties consumers may be interested in purchasing. The data is deemed reliable but is not guaranteed by MLS GRID.
Based on information submitted to the MLS GRID as of Sunday, April 12, 2026 4:04 PM.
All data is obtained from various sources and may not have been verified by broker or MLS GRID. Supplied Open House Information is subject to change without notice. All information should be independently reviewed and verified for accuracy. Properties may or may not be listed by the office/agent presenting the information.
Properties displayed may be listed or sold by various participants in the MLS.
DMCA Notice