3215 Scenic Drive Auburn WA 98092
Listed By:
John L. Scott, Inc
Listing ID
#2490060
Property Type
Single Family Residence
County
King
Neighborhood
Forest Villa
Year Built
1969
Days on website
27
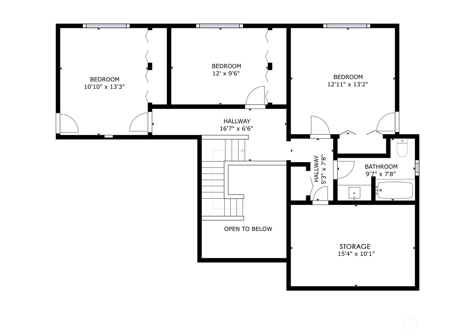
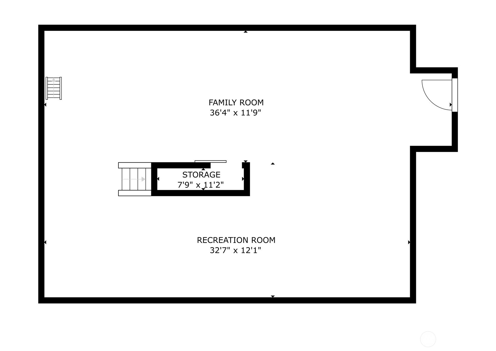
Perched on the ridge of Scenic Drive, this home offers a refreshing blend of vintage soul and high-end modern updates. While it retains the authentic character of its era, thoughtful renovations have transformed the interior into a sophisticated, designer-inspired retreat. The breathtaking gourmet kitchen features cathedral ceilings, crisp white cabinetry, sleek quartz counters, and a gas range. This culinary hub opens into a grand, versatile gallery space where a massive floor-to-ceiling fireplace serves as a stunning architectural centerpiece for the main level. The layout is designed for a modern lifestyle, including a custom flex room with industrial-chic shelving & wood-clad ceilings; perfect for a creative studio or library. With the primary suite and an additional office/5th bedroom on the main level, the floor plan is as functional as it is unique. Additional full bath and 3 bedrooms upstairs. Downstairs, the basement is a rec room paradise complete with a bouldering wall & custom play loft. Situated on nearly 3/4 acre, the outdoor space is a rare find. The expansive, level backyard features a massive lawn, raised garden beds, and an extended patio for entertaining. Whether you’re seeking a private spot to relax or a sun-drenched space for your outdoor hobbies, this versatile property delivers. This isn’t just a house; it’s a canvas for your lifestyle on a legendary lot. Welcome home to character, space, and a sophisticated vibe you won't find anywhere else.
List Price:
$ 749950
Taxes:
$ 8585
Appliances:
Disposal, See Remarks, Stove(s)/Range(s)
Basement:
Finished, Roughed In
Exterior Features:
Cement Planked
Fireplace Features:
Wood Burning
Flooring:
Carpet, Ceramic Tile, Engineered Hardwood
Foundation Details:
Poured Concrete, Slab
Interior Or Room Features:
Ceiling Fan(s), Dining Room, Fireplace, Vaulted Ceiling(s), Water Heater, Wine/Beverage Refrigerator
Levels:
One and One Half
Lot Features:
Curbs, Paved, Sidewalk
Parking Features:
Attached Garage, RV Parking
Roof:
Composition
Security Features:
Partially Fenced
Sewer:
Sewer Connected
Structure Type:
House
View:
Territorial
Water Source:
Public
MLSAreaMajor:
310 - Auburn
City:
Auburn
Subdivision Name:
Forest Villa
|
Scan this QR code to see this listing online.
Direct link:
https://www.searchproperties.eastsiderealestate.org/listings/direct/a66b8fb8efcfeac1cd15a1ae6673cc0f
|
Listed By:
John L. Scott, Inc
253-852-9200
Listings courtesy of Northwest Multiple Listing Service (NWMLS) as distributed by MLS GRID.
IDX information is provided exclusively for consumers' personal non-commercial use, and it may not be used for any purpose other than to identify prospective properties consumers may be interested in purchasing. The data is deemed reliable but is not guaranteed by MLS GRID.
Based on information submitted to the MLS GRID as of Monday, April 6, 2026 10:08 PM.
All data is obtained from various sources and may not have been verified by broker or MLS GRID. Supplied Open House Information is subject to change without notice. All information should be independently reviewed and verified for accuracy. Properties may or may not be listed by the office/agent presenting the information.
Properties displayed may be listed or sold by various participants in the MLS.
DMCA Notice